大理石因其美麗的色彩、特有的光澤、無一重復的美麗花紋,以及物理化學性能穩定易打理等優點,自古以來就被廣泛用于裝飾裝修之中。伴隨著中國經濟實力水平的穩健提升,大眾對工作和居住環境的要求也越來越高,大理石的使用范圍已經從原來的豪華的公共建筑物,進入到普通人家的住宅。
然而裝飾裝修及石材加工市場龍蛇混雜,在石材選料、加工、安裝的任何一個環節出現問題都將嚴重影響最終的感觀效果。
為此,本文以雪花白大理石為例,介紹大理石在選料、加工、安裝、修補結晶、成品保護等各個環節需要注意的事項,希望能給大家一些啟示和幫助。

雪花白原產于意大利中北部的卡拉拉礦區,全世界也只有這里開采出來的大理石可以叫做雪花白,因產量和產地的限制。
雪花白大理石底色潔白細膩、質感純凈給空間帶來一種空靈潔凈的氣息,讓進入其中的人感覺清新、自然。
雪花白的紋理顏色大多呈黑色或灰色,也有少部分黑中帶綠或呈黃褐色,紋理縱貫大理石板面,且呈不規則分布。雪花白大理石質地較軟,在紋理處容易出現斷裂的現象。
雪花白因產量和產地的限制價格較高,是大理石中的高端品種,一般使用在大堂,宴會廳等重要場所。


一、雪花白大理石原料的分類以及比選
雪花白石材因其品質的不同,其最終成型的裝飾效果差異非常之大,價格也從幾百到幾千不等。因此,了解雪花白的分級方式對于買到貨真價實的材料,保證工程的質量至關重要。
總體來說雪花白的價格主要以下因素決定:
1、底色越白的價格約高;(雪花白的首要定價因素)
2、紋理主次越分明、細紋越少、主紋越均勻的價格越高;
3、無黃斑、灰斑的價格較高;裂紋越少越不明顯的價格越高;
4、板面無陰陽色的價格較高。
圖片
國內石材行業對于雪花白的叫法五花八門,材料采購人員萬不可單憑一個名稱作為訂貨或確定價格的依據。一定要帶著設計師選定的石材樣板,親自到礦山或石材市場對荒料和大板進行比對,多走多看才能明白其中的奧秘。
通常雪花白在石材市場上按照其品質的高低有以下幾種名稱:
1、對于底色偏灰,紋路細密的石材一般稱作細花白或卡拉拉拉白(詳見附圖)。此種石材價格較低,使用也較為廣泛;


2、對于底色偏灰黑,紋路多且呈網狀分別的一般稱作中花白(詳見附圖)。此種石材價格也較低;


3、對于底色白、紋路清晰的一般稱作雪花白。其中紋路主次分明、細紋較少、主紋明顯且寬度均勻的一般稱作特級雪花白(詳見附圖),在一般工程項目中鮮有大面積使用,一般都只在大堂、宴會廳等重要空間用做局部點睛之筆。


普通雪花白


特級雪花白
4、對于底色白中微微泛黃(俗稱奶白色),紋理顏色較淺且通常帶一點黃色或綠色的雪花白,一般稱作魚肚白或者卡拉卡塔白(詳見附圖)。此種石材也同特級雪花白一樣屬于雪花白中的上等品種,價格較高;


正因雪花白石材的品質差異巨大,價格參差不齊。施工企業在采購此種石材的時候一定要在簽訂合同之前對加工廠的信譽以及加工能力有深入的考察,并在合同文件中對材料的品質有明確的要求。
加工過程中盡可能安排專人到工廠挑選大板并對加工過程進行監造,對于不合格的產品,堅決不予收貨,以確保工程質量。
二、雪花白大理石的加工

雪花白荒料從礦山運到工廠之后,需要經過:
荒料篩選→拉鋸加工大板→補膠打磨背網→大板篩選→針對紋理效果的電腦排版→紅外線橋切機加工規格板→現場排版確認→磨邊拋光→六面防護→編號包裝等等
一系列工廠化加工之后,才能運到工地進行安裝。在此過程中需要注意以下幾點:


(1)荒料及大板篩選雪花白因其底色深淺不一、紋理變化多樣風格各異,因此需要在荒料開大板前先挑選到足夠的底色和紋理風格都接近的荒料(若用量較大可以分區域進行挑選)。
因為若是加工到最后才發現同一風格或底色的荒料不夠,就需要花費大量的時間和人力物力去市場上尋找合適的荒料,而且還很可能因為采購量少而被迫高價采購。
為此,要將同一空間的雪花白用量全部計算出來,并制作好尺寸排版圖。然后將擬用于該區域的荒料用航吊吊到一起,并進行尺寸測量,確保所選擇的荒料足夠該空間使用。
這里需要注意的是:不能單從面積上去衡量荒料是否夠用,必須核對排版圖中的板塊尺寸,從而精確計算出石材出材率,這樣才能萬無一失。在確保荒料夠用之后,對擬用荒料用噴水法進行的底色和紋理風格的比對,若存在偏差必須予以更換,以確保最終的裝飾效果。
石材由荒料到大板的過程類似于賭玉,表面上看著底色紋理都很好的荒料,開出來的大板可能中間部分會存在裂紋、色斑等現象。
因此,除了在挑選荒料的時候安排有經驗的人員外,還需要對開出來的大板進行二次挑選,對存在瑕疵的大板,或不予使用,或切除帶瑕疵的部位后再進行使用。
(2)紋理效果預排版雪花白因其紋理變化多樣,通常設計師只會要求風格基本統一、無色差、無裂紋即可,不會要求對紋對線(詳見附圖)。

墻面

地面雪花白
雪花白不對紋路案例
但如果設計師有特殊要求,那么就需要對雪花白進行紋理效果的預排版。先將擬使用在該部位的大板進行編號,按編號順序拍成照片,并且測量好每塊大板的規格尺寸。
然后將大板照片按排版圖尺寸分割成規格板塊大小,再用圖形軟件進行紋路排版(詳見附圖)。加工的順序,以及每個塊大板切割的位置必須嚴格按照排版圖進行,嚴禁為了省料隨意改動。


雪花白對紋路排版案例圖
注:圖案中的色差是因為拍照時的光線原因產生,大板的底色在排版前已經進行過對比,必須在底色無差異的情況下才能進行排版。
為了達到對紋拼圖的效果,通過的紋理圖形預排版保證了雪花白石材的最終的裝飾效果滿足設計師要求,但與此同時也真加了石材加工和現場安裝的難度,大大降低了石材的出材率,提高了工程造價。
因此,在使用雪花白這種石材的時候,是否選擇對紋處理,需要業主及設計師根據項目情況酌情考慮。

(3)規格板排版及確認在規格板加工出來之后,為確保石材的品質滿足設計師要求,需要在工廠中找一特定位置將加工出來的規格板按照設計好的排版圖進行擺放,并在高處設置一觀察平臺,邀請業主、設計、監理等人員現場對排版進行確認。

加工現場雪花白規格板排版效果圖
(4)雪花白加工過程中的其他注意事項
在石材加工的各個環節都會用到水,一般石材生產商而為了節約成本、同時滿足環境保護法規的相關要求都會使用經過沉淀的循環水。
石材加工中各個環節使用到的石材化學制劑都會流入循環水中(如石材染色劑、石材拋光蠟等等)。
這些化學制劑對于常規的黑色石材或米黃石材不會有明顯的影響。但對于雪花白這種通體雪白且質地較軟的石灰質石材,則極有可能造成不可逆的嚴重污染。因此,在加工雪花白的過程中所用到的水必須是自來水。
雪花白石材通體雪白,其中含有無數細小的晶體顆粒,表面光澤度極高。一旦出現斷裂,在施工現場無論如何修補都會看出斷裂的痕跡,而且若現場安裝采用濕貼工藝進行施工,則雪花白極易在斷裂處出現返堿現象。
因此,雪花白從荒料切割成大板之后就需要立即進行修補打磨以及背網等工作,以減少雪花白在加工及安裝過程中出現斷裂的幾率。
雪花白質地較軟,在安裝后出現污染的概率較大,因此,雪花白出廠前必須做好六面防護。
三、雪花白安裝工藝及其質量控制要點

通常墻面石材安裝工藝一般分為干掛、點掛、膠粘、濕貼等。相比較而言,雪花白干掛工藝優點明顯:
1、其有效的避免了傳統濕貼工藝中雪花白大理石出現的返堿、污染等現象,有利于保證最終的裝飾效果;
2、很好地解決了濕貼工藝中雪花白大理石經常出現的板材空鼓、開裂、脫落等現象,提高了建筑物的安全性和耐久性;
3、基本避免了石材因外界溫度高低產生熱脹冷縮而導致的脫落傷人事故;減輕了建筑自重,增加了石材的抗震性;因施工工序較少,節省了安裝時間加快工程、進展;
4、安裝可調節性大,更利于工人操作,使得墻面平整度、垂直度更有保障;沒有用到水泥、河沙等比較“臟”的材料,有利于保證施工現場干凈整潔。因此,干掛工藝非常適合在高大空間及大面積的墻面石材施工使用。

但干掛工藝也有其固有的缺點:
1、因其鋼架需要一定空間,因此會占用較多的建筑面積;
2、因其石材版面與墻體之間存在較大空隙,因此不利于室內防水,同時也為蟑螂、老鼠等提供了庇護所。

干掛工藝中按照掛件的種類又分為背栓干掛法和T型不銹鋼掛件干掛法:
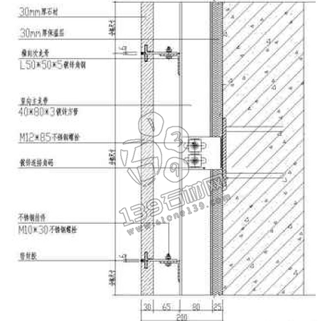
背栓干掛法是指在石材背面開一個大小合適的背栓孔,將背栓放入孔中擰緊錨固,再用特制的鋁合金干掛件連接到鋼骨架上面的安裝工藝(詳見附圖)。
此種工藝安裝牢固,抗震性能好,施工過程對石材無任何污染,但要求石材質地密實且厚度在30mm 之上,且掛件造價較高。因此,該工藝通常同于幕墻石材施工。

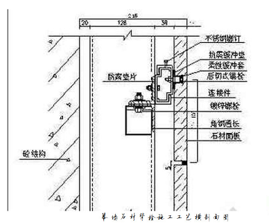
“T”型掛件干掛工藝是指將“T”型掛件用螺栓連接到基層鋼架上,然后將石材的上下邊緣正對掛件的中間位置切開一道槽,最后用干掛膠將掛件與石材的開槽處連接在一起(詳見附圖)。
在室內裝飾工程中,絕大多數的干掛石材還是采用的“T”型掛件干掛工藝。

采用該工藝時,首先要注意的是石材干掛膠的選擇,市面上常見的石材膠有云石膠和AB膠, 云石膠具有硬度高、固化速度快等優點,但其粘接強度以及耐久性也遠遠弱于AB膠,而且耐候性差。
因此,常常用于石材修補及臨時固定。AB膠硬化較慢一般初凝需要2個小時,完全固化需要2天左右,但其粘接強度高、耐久性好、抗震性好,因此被用于石材的永久性固定。
該工藝因需要在石材板塊正中開槽,一般大面積施工時要求板塊厚度達到25mm以上,深交所雪花白在招標時要求厚度僅為20mm,為此我司在石材板塊安裝前,需要先用粘背條的方式將石材板塊切槽處加厚至35mm。
雪花白大理石除了地面、廚房等基本采用的是膠泥濕貼的工藝做法,其他部位大多數采取的是T型掛件干掛的施工工藝,施工過程中除了前面提到的質量控制點外,還需要注意以下事項:


(1)對于黑色或米黃色系列的石材來說,因AB膠對其污染性較小,一般采用T型掛件干掛時,無需在開槽處重新涂刷石材防護劑。
但對于雪花白這一類的石材,在T型掛件的開槽位置必須重新涂刷防護劑,否則極易造成石材發黃變色。
(2)相對于普通石材,雪花白石材紋理變化極大,現場安裝時必須嚴格按照工廠的排版進行安裝,切不可隨意調整板塊安裝的位置,否則將無法達到設計認可的效果。
(3)因雪花白石材的質地較軟,在消防栓暗門、管道井暗門等經常開啟,且有人員活動的位置,必須進行加厚處理,否則石材極易出現折斷的現象。
(4)雪花白石材因其質地軟,易污染的特性,施工完成之后的成品保護工作顯得尤其重要。對于所有的陽角部位,用9mm厚夾板釘成護角進行保護。
對于大面積的石材板面用珍珠棉加5mm厚夾板進行保護。對于石材暗門等位置,應考慮在工程交付前最后時刻再進行安裝,安裝完成后貼上封條,確保門扇不被隨意開啟。

總結:隨著石材在室內裝飾的使用越來越普及,更多的石材品種將被人們開發利用,如何采購到貨真價實的材料,如何更好的展現出石材的天然品質,是大家值得深入研究的課題。相信在大家的共同努力下,石材飾面的工程質量會有更加長足的進步。
客服熱線:











